Modelo Sirio

Sirio

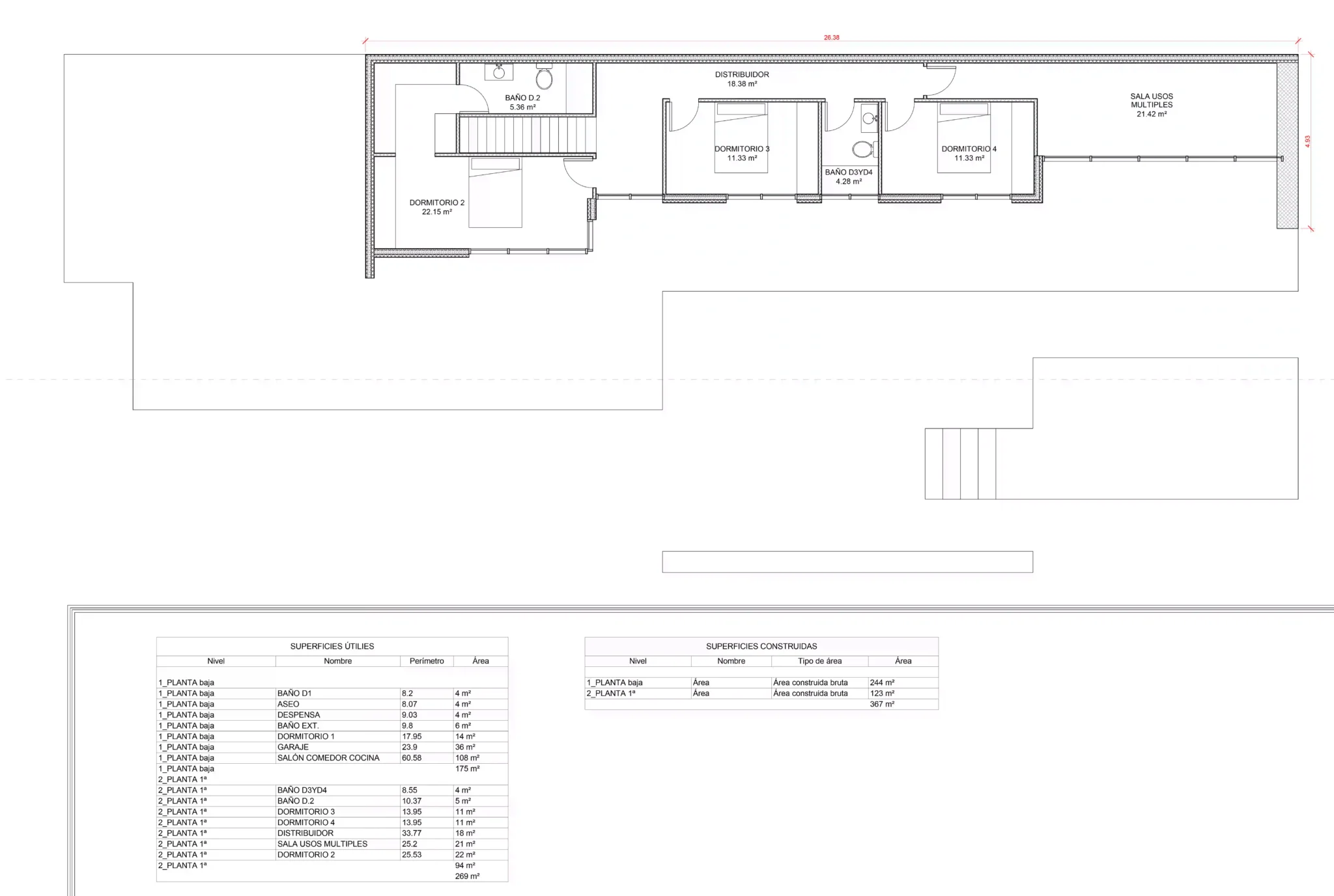
El modelo Sirio es una obra arquitectónica diseñada para quienes desean vivir en un entorno moderno, exclusivo y lleno de luz. Con 367 m² distribuidos en espacios amplios y perfectamente conectados, esta vivienda modular representa la esencia de la elegancia contemporánea.

Sus líneas minimalistas y sus ventanales de gran formato crean una sensación de amplitud incomparable, permitiendo que la luz natural sea protagonista en cada estancia. La integración con el exterior es total, generando una armonía perfecta entre el diseño interior y las áreas al aire libre, ideal para disfrutar del entorno, la piscina y las zonas sociales.

El cuidadoso diseño de Sirio prioriza tanto la estética como la funcionalidad. Su configuración ofrece zonas de día abiertas, dormitorios de gran tamaño, espacios privados cuidadosamente pensados y acabados premium que elevan el nivel de confort.

Cada detalle está orientado a ofrecer una experiencia de vivienda excepcional, combinando tecnología, sostenibilidad y un impacto visual imponente. Sirio es la elección perfecta para quienes buscan lujo, amplitud y un estilo arquitectónico inconfundible.

Plano y distribución del modelo

Incluye

  • Estructura modular premium con tecnología avanzada y materiales de alto rendimiento.
  • Acabados de lujo, tanto en interiores como en fachada.
  • Grandes ventanales panorámicos con carpintería de alta eficiencia energética.
  • Integración arquitectónica con terrazas y zonas exteriores, ideal para piscina y áreas sociales.
  • Cocina moderna de diseño con mobiliario de alta gama.
  • Dormitorios amplios tipo suite, diseñados para máximo confort y privacidad.
  • Sistemas de aislamiento avanzado para optimizar eficiencia térmica y acústica.
  • Iluminación LED de última generación, estratégicamente distribuida.
  • Baños completos con sanitarios y grifería premium.
  • Preinstalación para climatización y domótica, adaptable según necesidades.
  • Construcción sostenible mediante procesos y materiales respetuosos con el medio ambiente.

Preguntas frecuentes

La construcción de una casa modular como la Sirio puede completarse en un plazo de 4 a 6 meses, dependiendo de las personalizaciones solicitadas.
Sí, las casas modulares Sirio se diseñan de manera flexible, permitiendo personalizar los espacios interiores según las necesidades del propietario.
Sí, la Sirio está diseñada con un enfoque sostenible, utilizando materiales reciclables y un sistema de aislamiento avanzado para mejorar la eficiencia energética.

OHcasas

Solicita información sobre el modelo Sirio

Recibe asesoramiento personalizado, planos detallados y presupuesto adaptado a tu proyecto sin compromiso.