Modelo Antares

Antares

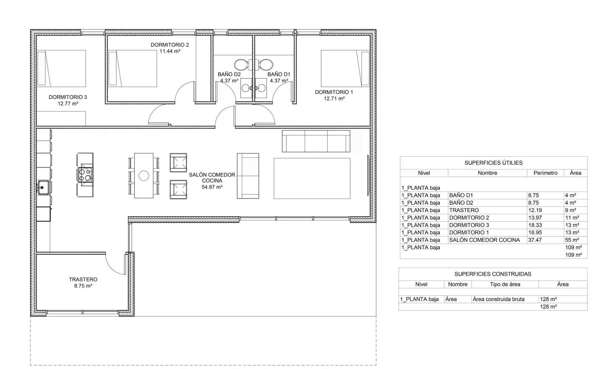
El modelo Antares representa la esencia de la arquitectura moderna: líneas puras, espacios abiertos y un diseño pensado para vivir con comodidad y elegancia. Con 128 m² en una sola planta, esta vivienda ofrece una distribución optimizada que permite aprovechar cada metro de forma funcional y estética.

Su diseño incorpora grandes puertas correderas de cristal que inundan los interiores de luz natural y facilitan una transición fluida hacia la terraza y las zonas exteriores. Esto crea un ambiente cálido, amplio y perfecto para disfrutar en familia o con amigos.

Los espacios interiores están cuidadosamente estudiados para garantizar una experiencia de confort total: zonas sociales amplias, dormitorios con privacidad, cocina moderna y una iluminación estratégica que resalta la pureza arquitectónica del modelo.

Antares es ideal para quienes buscan una vivienda modular premium, eficiente y visualmente impactante, donde la calidad de los materiales y el diseño se unen para ofrecer un estilo de vida superior.

Plano y distribución del modelo

Incluye

  • Estructura modular de alta eficiencia fabricada con materiales duraderos y excelentes propiedades térmicas.
  • Acabados premium en interiores y exteriores, con selección de materiales de primera calidad.
  • Puertas correderas de cristal de gran formato para máxima entrada de luz natural.
  • Cocina moderna equipada con mobiliario de diseño y distribución funcional.
  • Dormitorios amplios con opciones de almacenamiento integrado.
  • Aislamiento térmico y acústico reforzado para mayor confort en cualquier clima.
  • Instalaciones eléctricas e iluminación LED de alto rendimiento.
  • Ventanas y cerramientos de alta eficiencia energética.
  • Baños completos con sanitarios y grifería de calidad superior.
  • Preinstalaciones listas para climatización y domótica.
  • Sistema constructivo sostenible, respetuoso con el entorno y de bajo impacto ambiental.

Preguntas frecuentes

La distribución abierta de la Antares permite una fluidez de los espacios, haciendo que cada habitación se conecte naturalmente con el resto de la vivienda, creando una sensación de amplitud y comodidad.
La estructura modular de la Antares permite ciertas modificaciones dentro de los espacios, adaptándose a las necesidades del propietario sin comprometer la integridad estructural.
Sí, la Antares cuenta con aislamiento térmico y acústico, lo que la hace ideal tanto para climas cálidos como fríos, asegurando un alto rendimiento energético en cualquier estación.

OHcasas

Solicita información sobre el modelo Antares

Recibe asesoramiento personalizado, planos detallados y presupuesto adaptado a tu proyecto sin compromiso.