Modelo Altair

Altair

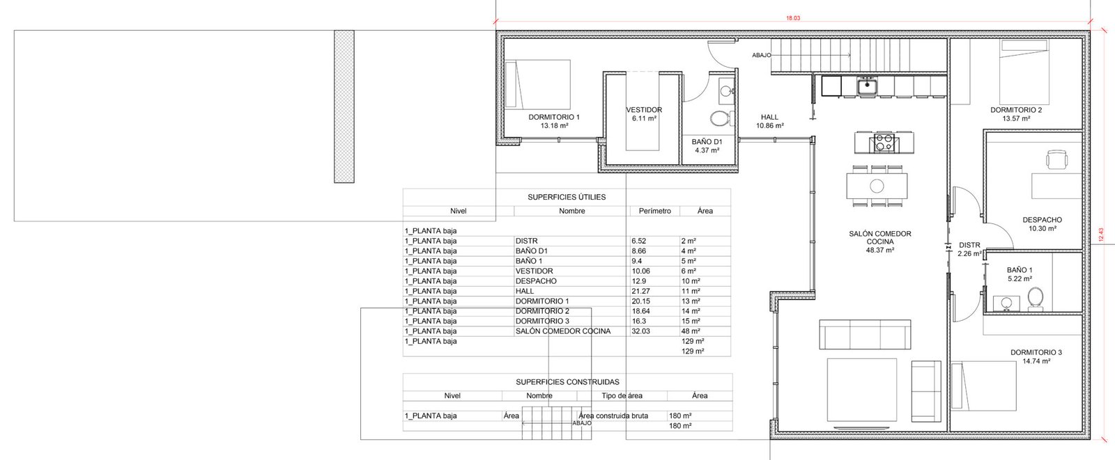
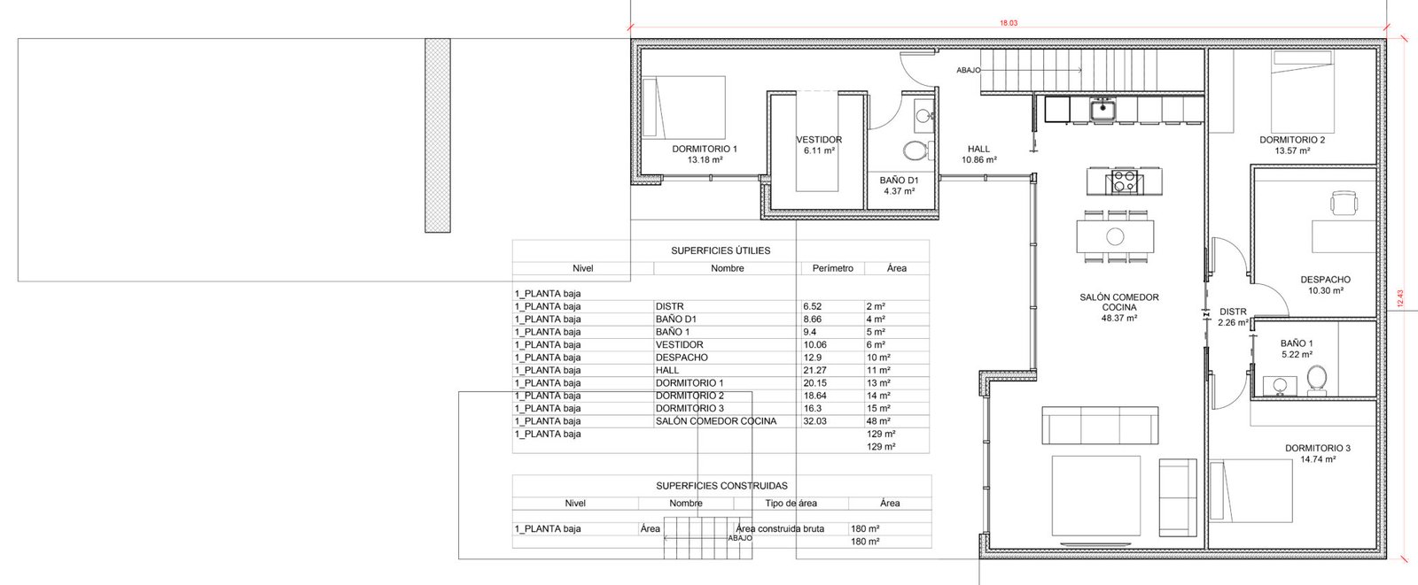
El modelo Altair destaca por su arquitectura moderna y minimalista, con líneas limpias, grandes ventanales y una distribución que potencia la luminosidad y la amplitud en todos sus espacios. Pensado para ofrecer una experiencia de vida de alto nivel, combina equilibrio, diseño y funcionalidad en cada detalle.

El corazón del hogar es un salón-comedor con cocina integrada de casi 50 m², un ambiente abierto y luminoso que se conecta directamente con el exterior. Este espacio está diseñado para disfrutar en familia, recibir visitas o simplemente relajarse en un entorno amplio y confortable.

La zona privada cuenta con tres dormitorios, siendo el principal de 13 m² y con acceso directo a un vestidor y baño privado. Los dormitorios secundarios, de 14 m² y 15 m², ofrecen espacio suficiente para familias grandes o para quienes deseen habitaciones multiuso.

Además, Altair incorpora un despacho de 10 m², ideal para teletrabajo, estudio o uso profesional, así como un vestidor, dos baños completos y amplias zonas de distribución.

Con una construcción sostenible, acabados premium y una distribución bien equilibrada, Altair es la elección perfecta para quienes buscan una vivienda modular de gama alta y completamente funcional en una sola planta.

Plano y distribución del modelo

Incluye

  • Estructura modular de alta eficiencia, con excelentes propiedades térmicas y acústicas.

  • Acabados premium en interiores y exteriores.

  • Salón-comedor-cocina de 48 m², con diseño abierto y ventanales panorámicos.

  • Tres dormitorios amplios, incluyendo un dormitorio principal con vestidor y baño privado.

  • Despacho independiente ideal para teletrabajo.

  • Dos baños completos equipados con grifería y sanitarios de calidad superior.

  • Vestidor de 6 m² conectado al dormitorio principal.

  • Grandes ventanales de alta eficiencia energética.

  • Iluminación LED en todas las estancias.

  • Aislamiento térmico y acústico de última generación.

  • Preinstalación de climatización y domótica.

  • Construcción sostenible, respetuosa con el entorno y de bajo impacto ambiental.

Preguntas frecuentes

Sí, es posible modificar acabados, colores y ciertos elementos internos gracias al sistema modular.
Totalmente. Incluye un despacho independiente de 10 m², ideal para oficina, estudio o sala creativa.
Altair utiliza materiales avanzados, aislamiento premium, ventanas de alta eficiencia y LED en toda la vivienda, logrando un excelente rendimiento energético.

OHcasas

Solicita información sobre el modelo Altair

Recibe asesoramiento personalizado, planos detallados y presupuesto adaptado a tu proyecto sin compromiso.