Modelo Alhena

Alhena

El modelo Alhena destaca por su arquitectura moderna y equilibrada, pensada para quienes desean una vivienda luminosa, funcional y visualmente impactante. Su diseño distribuye la vida diaria entre amplios espacios en planta baja y una zona de descanso perfectamente organizada en la planta superior.

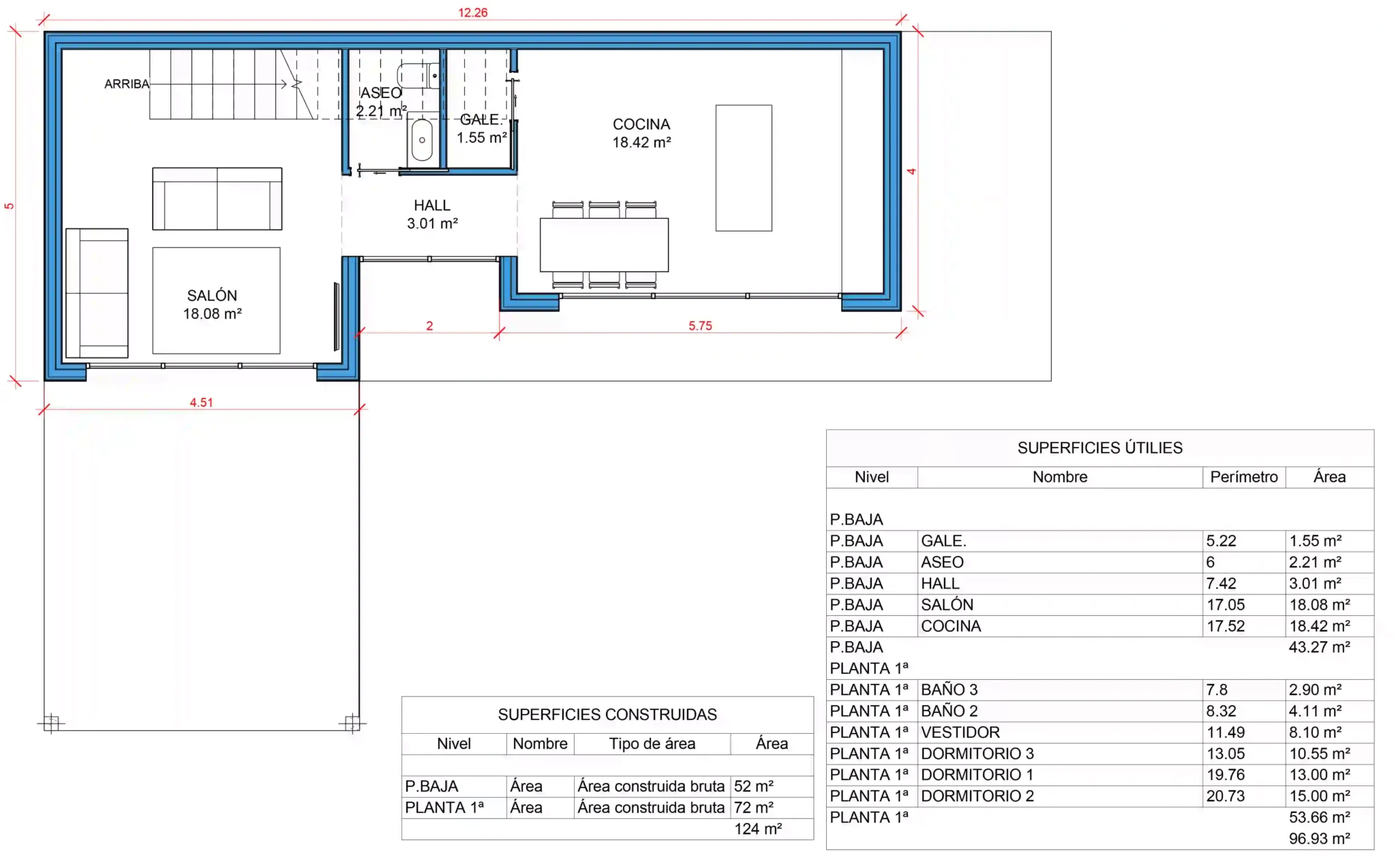
En la planta baja, las áreas sociales están diseñadas para ofrecer comodidad y fluidez: un salón amplio conectado con la cocina, grandes ventanales que permiten la entrada generosa de luz natural y acceso directo a terrazas y exteriores que potencian la experiencia de vida al aire libre.

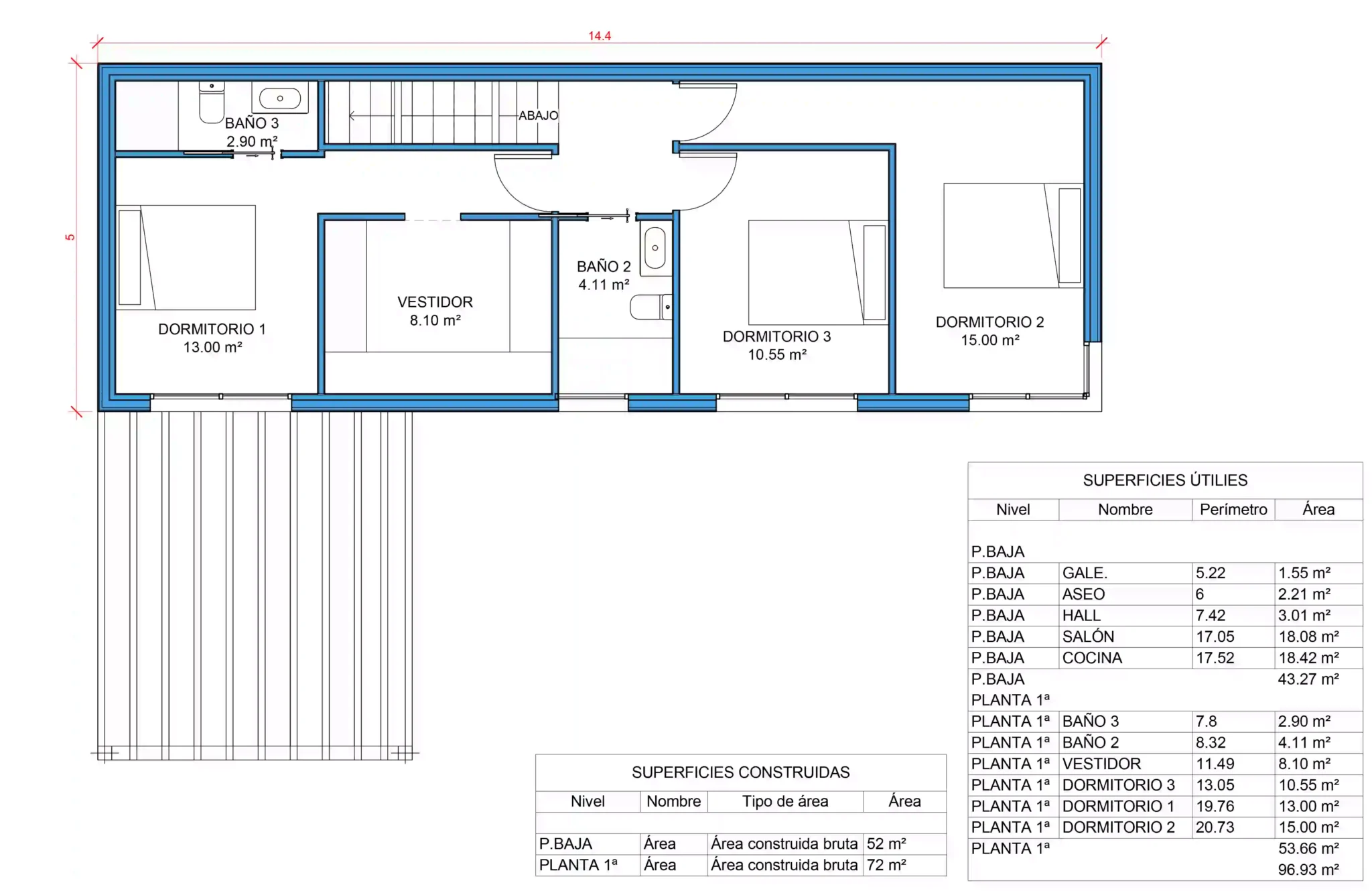
La planta superior está cuidadosamente estructurada para ofrecer privacidad y confort. Cuenta con tres dormitorios de excelente tamaño, dos baños completos, un vestidor amplio y un diseño que optimiza cada metro disponible, pensando en las necesidades del día a día.

Los materiales premium, la eficiencia energética y el estilo moderno hacen de Alhena una opción ideal para quienes buscan una vivienda modular premium, sostenible y lista para disfrutar.

Plano y distribución del modelo

Incluye

  • Estructura modular de alta eficiencia fabricada con materiales duraderos y excelentes propiedades térmicas.

  • Acabados premium en interiores y exteriores.

  • Grandes ventanales panorámicos que maximizan la entrada de luz natural.

  • Cocina moderna equipada con mobiliario de diseño y distribución funcional.

  • Dormitorio principal con vestidor y baño privado.

  • Dormitorios amplios adicionales en la planta superior.

  • Aislamiento térmico y acústico avanzado para mayor confort.

  • Instalaciones eléctricas e iluminación LED de última generación.

  • Ventanas y cerramientos de alta eficiencia energética.

  • Baños completos con sanitarios y grifería de calidad superior.

  • Preinstalaciones listas para climatización y domótica.

  • Sistema constructivo sostenible, respetuoso con el entorno y de bajo impacto ambiental.

Preguntas frecuentes

Sí, el sistema modular permite realizar ajustes y configuraciones a medida manteniendo la integridad estructural del diseño.
Totalmente. Alhena ofrece espacios amplios, dormitorios en la planta superior y una distribución pensada para la vida familiar.
Sí, su diseño incorpora aislamiento avanzado, ventanas de alta eficiencia y materiales sostenibles que optimizan el consumo energético.

OHcasas

Solicita información sobre el modelo Alhena

Recibe asesoramiento personalizado, planos detallados y presupuesto adaptado a tu proyecto sin compromiso.